Bildegalleri

Balkong
Carl Berner/Ola Narr: 1(2) roms med god takhøyde og sydvendt balkong. Oppussingsobjekt.
Nøkkelinfo
- Boligtype
- Leilighet
- Eieform
- Andel
- Primærrom
- 46 m²
- Bruksareal
- 47 m²
- Byggeår
- 1939
- Energimerking
- G - Lysegrønn
- Rom
- 1
- Tomteareal
- 3 352 m² (eiet)
- Bruttoareal
- 52 m²
Fasiliteter
Innhold:
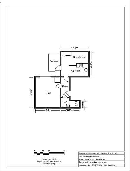
Entré, bad, stue, kott og alkove/kjøkken.
Standard:
Romslig 1-roms andelsleilighet med utgang til lun og solrik balkong.
Kjøkken med komfyr, innredning i lakkerte fronter, laminat benkeplater med nedfelt rustfri kum. Ventilator med kullfilter.
Stor stue med god plass til sofagruppe og spisebord.
Bad med wc, servant og dusj i hjørne. Lysarmatur med stikkontakt. Varmekabler med termostat og ventil i himling. Bad ble pusset opp i 2001 i regi av borettslaget.
Det er alkoveløsning ved siden av kjøkkenet. Nytt garderobeskap (2010) medfølger.
Leiligheten har generelt stor slitasje og oppgradering må påregnes.
Leiligheten kan konverteres til 2-roms, forutsatt at ny eier får innhentet nødvendige tillatelser fra styret og evt plan- og bygningsetaten.
Gulv: Laminat, fliser på bad.
Vegg: Malt mur, malte panelplater og fliser i våtsone på bad.
Himling: Malt, pusset betong.
Diverse:
- Borettslaget består av 57 andelsleiligheter.
- Fellesvaskeri i kjeller.
- Get er leverandør av kabel-tv tjenester.
- Veldrevet og hyggelig borettslag.
Vedlikehold:
2010 utskiftninger av vinduer oppgang D. Oppgradering av fjernvarmeanlegg (pumpe).
2009 Rehabilitering av gesims.
2008/09 44 balkonger oppført.
1999 VVS rehabilitering.
Fyring/Oppvarming:
Sentralfyring (fjernvarme) og varmekabler på bad. Ny radiator på kjøkken.
Beliggenhet:
Sentralt og attraktivt boområde med beliggenhet på Carl Berner / Ola Narr. God offentlig kommunikasjon fra Carl Berner med trikk, buss og T-bane (5 og 6).
Området kan by på butikker, serveringssteder, treningssenter, og flere andre servicetilbud.
Fine tur- og rekreasjonsmuligheter med Ola Narr, Tøyenparken og Botanisk Hage i nærområdet. Ca. 10 minutters gange til Grünerløkka med kafeer og spennende restauranter og butikker og Sofienbergparken m.m.
T-baneringen sto klar høsten 2006. Det ble da tilknytning vestover fra Carl Berner forbi Sinsen, Storo og Nydalen til Ullevål og andre veien via Carl Berner og til sentrum.
Carl Berner har nylig gjennomgått storstilt oppgradering og fremstår i dag som et moderne knutepunkt med svært god tilgang på offentlig kommunikasjon.
Adkomst:
Adkomst fra Trondheimsveien og Ola Narr inn på Frydens gate. Det vil skiltes under annonserte visninger.
Parkering:
Borettslaget har 4 parkeringsplasser som leies ut for kr. 200,- pr mnd. Styret foretar tildeling etter ansiennitet for 1 år av gangen. Forøvrig parkering i gate.
Byggemåte:
Fra takst: Støpte fundamenter og grunnmur på fast grunn. Bærende konstruksjoner i betong og mur, utvendig spekkmurte fasader.
Saltak tekket med betongtaksten.
Vinduer i tre med isolerglass fra 1983, balkongdør og vindu på kjøkken fra 2009.
Brann- og lydklassifisert entrédør med sikkerhetslås.
Lånevilkår:
Lånegiver: Terra
Type lån: Annuitet
Restsaldo: kr. 8.100.350,-
Restløpetid: 26 år 9 mnd
Terminer per år: 12
Rente: 3,95 % flytende.
Lånegiver: Terra
Type lån: Annuitet
Restsaldo: kr. 5.105.101,-
Restløpetid: 18 år 9 mnd
Terminer per år: 12
Rente: 3,95 % flytende.
Det er IN-ordning på det ene lånet, eier kan innfri hele eller deler (min. kr. 60.000,-) av sin andel.
Energimerking:
Energimerke G og oppvarmingskarakter LYSEGRØNN
Vei, vann og avløp:
Offentlig adkomst, øvrig ikke opplyst i takst.
Selges "som den er":
Eiendommen selges "som den er", jf. avhendingsloven § 3-9. Dette innebærer at avhendingslovens regler om når eiendommen har mangel fravikes til ugunst for kjøper. Eiendommen har allikevel mangel der dette følger av avhendingslovens § 3-7 "manglende opplysninger om eiendommen" eller § 3-8 "uriktige opplysninger om eiendommen" eller eiendommen viser seg å være i vesentlig dårligere stand enn kjøper hadde grunn til å regne med ut fra kjøpesummen og forholdene for øvrig.
Beskaffenhet
Regulering
Ta kontakt med megler for komplett informasjon
Nærområdet
Schala & Partners Grünerløkka
Annonsene kan være mangelfulle i forhold til lovpålagt opplysningsplikt. Før bindende avtale inngås oppfordres interessenter til å innhente komplett informasjon fra meglerforetaket, selger eller utleier.















