Bildegalleri

TANUM - UNIK, HERSKAPELIG EIENDOM I NATURSKJØNNE OMGIVELSER
Nøkkelinfo
- Boligtype
- Enebolig
- Eieform
- Eier (Selveier)
- Soverom
- 5
- Primærrom
- 463 m²
- Bruksareal
- 481 m²
- Byggeår
- 1958
- Energimerking
- E - Oransje
- Tomteareal
- 4 916 m² (eiet)
- Boligselgerforsikring
- Ja
Fasiliteter
Visning
Ta kontakt for å avtale visning.Beliggenhet
Eiendommen ligger i et høydedrag på Tanumplatået med flott utsikt mot sjøen, omringet av vakker natur.
SKOLEKRETS: Tanum barneskole, Bjørnegård ungdomsskole.
Beskrivelse
Herskapelig eiendom oppført på stedet 1957/1958 etter å ha blitt flyttet fra Bestumkilen. Arkitekt Bernt Heiberg tegnet om huset slik det fremstår i dag. Huset ligger på fjellgrunn. Eiendommer har nydelig interiør med flotte farger og detaljer.
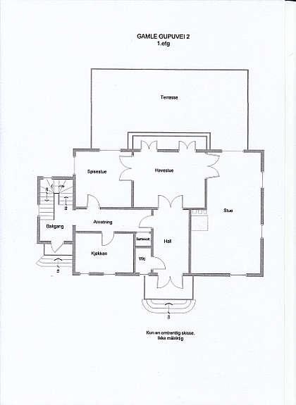
Inneholder: 1. etg.: Entre/hall, gjestetoalett, havestue med utgang terrasse og hage, annretning, kjøkken med spiseplass, stue med peis, spisestue, kjøkkeninngang.
2.etg.: Trapperom, gang, lagringsloft, 5 soverom hvorav ett med utgang terrasse, omkledningsrom, dusjbad/wc, bad med bader og separat wc.
Kjelleretg.: Trapperom, gang, jaktstue, kjellerstue med peis, vedovn, vinkjeller, fyrrom, garderobe, boder.
Garasje: Dobbel garasje ( 69m2 s-rom), lagerrom med egeninngang, bod i bakkant med separat inngang, som har vært brukt til valpekennel.
Redskapsbod
VANN OG AVLØP: Borebrønn med eget rense og mykningsanlegg for vann, septiktank. Tømming av septik ca hvert 3dje år. Det er 3 utekraner for vann, henholdsvis 2 stk. på gårdsplass og 1 på terrassen.
OPPVARMING: Sentralvarmeanlegg med radiatorer. Vannbåren varme i begge badegulv, elektrisk, ved. Det er 3 stk. el-utestikk-kontakter henholdsvis 1 stk. på gårdplass, 1 stk. på terrassen, 1 stk. på veranda i 2.etg.
Adkomst
Følg kartskissen. Følg Vestmarkveien mot Vestmarksetra ta til venstre i Gamle Gupuvei
Utfyllende informasjon om fellesgjeld og felleskostnader
Annen info 1
Annen info 2
Annen info 3
Annen info 4
Annen info 5
Beskaffenhet
4.913m2 eiet tomt. Nydelig naturtomt og asfaltert adkomst med rundkjøring med springvann i front av hovedinngangen til eiendommen.
Eiendommen er uregulert og ligger i et LNF område.
Ta kontakt med megler for komplett informasjon
Nærområdet

Beckmann & Berg AS - IKKE AKTIV
Annonsene kan være mangelfulle i forhold til lovpålagt opplysningsplikt. Før bindende avtale inngås oppfordres interessenter til å innhente komplett informasjon fra meglerforetaket, selger eller utleier.



















