Bildegalleri

Ny bolig til jul ? Nesøya: Lys, luftig bolig m/ flott, stor solrik uteplass. Peis, garasje. Båtplass. Kjøkken fra 2009
Nøkkelinfo
- Boligtype
- Tomannsbolig
- Eieform
- Eier (Selveier)
- Soverom
- 2
- Primærrom
- 90 m²
- Bruksareal
- 93 m²
- Byggeår
- 1963
- Energimerking
- F - Oransje
- Renovert år
- 2009
- Tomteareal
- 91 979 m² (eiet)
- Bruttoareal
- 107 m²
- Boligselgerforsikring
- Ja
Fasiliteter
Beliggenhet
Lys og hyggelig bolig i blindvei.
½-part av vertikaldelt tomannsbolig over 2 plan hvor stuen har utgang til terrasse og videre til hage, gode solforhold. Boligen har skjermet og god beliggenhet.Gode solforhold. Tomten er opparbeidet og beplante. Fin plen og uteplass rundt huset. Peisovn i stuen. Beliggende i et veletablert og populært område bestående av småhusbebyggelse på Nesøya og det er kort avstand til barnehage, barne- og ungdomsskole, forretninger og offentlig kommunikasjon.
Beskrivelse av nærområdet / fasiliteter
Solrikt og svært barnevennlig vertikaldelt tomannsbolig innerst i sidegate og blindvei. Attraktiv beliggenhet innen sameiet.
Rolig og tilbaketrukket fra vei. Gode solforhold på terrasse/uteplass og i hagen.Både tennisbane, badmingtonbane, ballplass og lekeplasser innen sameiet. Kort vei til skole, barnehage, butikk og offentlig kommunikasjon med ekspressbuss. 5 minutter med bil til Sandvika.
Sameiets fineste lekeplass like ved. Kort avstand til barnehage, barne- og ungdomsskole, forretninger og offentlig kommunikasjon. Her er det et trivelig nærmiljø som passer flott for barna. Trygg skolevei uten å krysse noen hovedvei. Kort gangavstand til brygge og båthavn ( båtplass) samt bademuligheter.
Shopping på Slependen med IKEA,Smart Club og Rema1000, samt en Mc Donalds.
Boligen har opparbeidet ansiennitet i Halsbukta båtforening. Innskudd i Halsbukta båtforening følger boligen se vedtekter for tildeling av båtplass.
Det må meldes bruk av båtplass før hver sesong.
Som medlem i Halsbukta båtforening er man medeier i bryggeanlegg i Østre og vestre Halsbukta.
Båtplass i Halsbukta båtforening følger boligen. Man må melde bruk av båtplass til båtforeningen før hver sesong.
Ved bruk av båtplass betales meget lav bryggeleie. Avgift avhenger av størrelse på båt og båtplass. Kort avstand fra boligen.
Bygninger
1/2 part av tomannsbolig og en garasjeplass i rekke.
Byggemåte
Vertikaldelt tomannsbolig i betong- og trekonstruksjoner. Betongsåle, antar fundamentert til faste eller komprimerte masser. Etasjeskillere av trebjelkelag, synlige ventiler utvendig tyder på ventilert hulrom under gulvet i 1. etasje. Yttervegger i 1. etasje av bindingsverk som utvendig er kledd med liggende
kledning. Gavlvegg av murte blokker som er pusset og malt, skjoldet trenger vask og maling. Vinduer og terrassedør med isolerglass som er stemplet 1979. Tak i trekonstruksjoner tekket med takpanner. Stue har utgang til terrasse på ca 35 m² og videre til hage. Markiser ved soverom og motorisert markise ved terrasse. Peisovn i stue. Aircondition i 1 soverom.
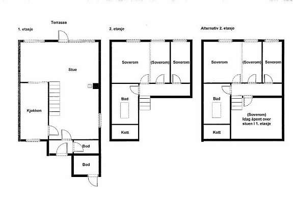
Arealer og fordeling per etasje
Totalt: BTA 107m² / Bra 93m² / P-rom 90m² / S-rom 3m²
1.etasje: BTA 69m² / Bra 59m² / P-rom 56m² / S-rom 3m²
2.etasje: BTA 38m² / Bra 34m² / P-rom 34m²
Innhold
1.etasje: Vindfang, kjøkken, stue/spisestue, bod.
2.etasje: Trappegang, bad, 2 soverom. ( opprinnelig 3 soverom) se planskisse.
Standard
Velholdt og lys bolig med meget god takhøyde innvendig.
Etter nåværende eieres overtagelse i 2004 har det blitt montert ny peisovn i stue.
I 2009 ble det montert ny kjøkkeninnredning med integrerte hvitevarer samtidig som det ble lagt ny parkett på kjøkkengulv.
Kabel-TV og lovpålagt røykvarsler/brannslukningsutstyr er installert. Fordelingskurser med automatsikringer. 120 l varmtvannsbereder i bak knevegg på bad. Naturlig avtrekk til yttervegg. Garderobeskap i 1 soverom. Gulv med parkett, gulvbord og fliser. Vegger med malt panel, tapet, malte flater og fliser. Himlinger med malt panel og malte flater, skråhimling i stue i deler av stue. Kjøkkeninnredning med malte, profilerte fronter. Nedfelt kjøkkenbeslag i heltre benkeplate. Avtrekksvifte i hette. Integrert koketopp, stekeovn og oppvaskmaskin samt nisje for kjøleskap. Bad med heldekkende servant, underskap, wc, innbygd badekar og 2 svingbare dusjvegger. Opplegg for vaskemaskin og tørketrommel. Det ble rutinemessig søkt etter fukt i dusjsonens vegger med fuktdetektor (Protimeter SM) på befaring Det ble rutinemessig søkt etter fukt i dusjsonens vegger med fuktdetektor (Protimeter SM) på befaringen, og det var ingen indikasjoner på fukt.
Oppvarming
Varmekabler i badegulv, panelovner ellers.Peisovn i stue.
Parkering / Garasje
Det medfølger garasje i rekke samt at det er opparbeidet parkeringsplasser på fellesområdet.
Vei / Vann / Avløp
Offentlig
Servitutter / Rettigheter
Legalpant for inntil 1G for ubetalte utgifter.
Beskrivelse av sameiet
Nordre Nesøya Sameie består av 21 vertikaldelte tomannsboliger og 27 rekkehus i alt 138 boliger. Innflytting i sameiet var i 1963. Det er tennis- og badmingtonbane i sameiet samt andre ball- og lekeplasser med apparater. For gjeldene bolig er det innbetalt innskudd for en båtplass med ansiennitet nr 63 i Halsbukta båtforening, se vedtekter for tildeling av båtplass. Forretningsfører for Nordre Nesøya Sameie er Asker og Bærum Boligbyggelag, ABBL. Det er de senere år blitt gravd nye vann- og avløpsledninger i området, som blir betalt over felleskostnadene.
Vi oppfordrer alle til å sette seg inn i sameiets vedtekter, husordensregler, regnskap, budsjett og årsberetning, som kan sees hos din PrivatMegler.
Oppgjør
Med mindre annet er avtalt forutsettes det at kjøper innbetaler kjøpesum og omkostninger før overtagelse.
Finansiering
Hvis du ønsker en rask avklaring på finansielle forhold, ta kontakt med PRIVATmegleren som har agentavtale med Nordea på finansielle tjenester og mottar godtgjørelse for dette.
Spesifikasjon av lån
Andel fellesgjeld pr. 24.11.11 er kr 10 346,- lånenr.6219.80.51115-Nordea. Annutietslån. Rente pr. 24.11.2011: 5,6%. 112 terminer til innfrielse. 12 terminer pr. år.Første termin/avdrag 15.12.04.
Diverse
Alle innvendige og utvendige arealangivelser er hentet fra vedlagte takstdokumenter.
Det gjøres oppmerksom på at megler ikke har innhentet særskilte opplysninger om det finnes pålegg fra E.Verk eller brann/feiervesen på eiendommen.
Overtagelse
Etter nærmere avtale.
Eierskifteforsikring
Selger har tegnet eierskifteforsikring, og interessenter oppfordres til å sette seg inn i selgers egenerklæring før det inngis bud på eiendommen.
Budgiving
Som budgiver hos PRIVATmegleren kan De kreve alle bud dokumentert og fremlagt. Dette betyr at De som budgiver må akseptere at deler av budet kan bli fremlagt for øvrige budgivere.
Megler har rett til å avvise bud gitt på SMS og E-post. Første bud på eiendommen skal være skriftlig og må ikke ha kortere akseptfrist enn til kl. 12.00 første virkedag etter siste annonserte visning. Lørdag regnes ikke som virkedag. Bud med kortere frist enn dette kan ikke formidles av megler. Nærmere info på egen side.
Solgt 'som den er'
Eiendommen selges i den forfatning den er under visning, salget følger avhendingslovens § 3-9: "Enda eigedomen er "selt som han er", eller med liknande atterhald, har eigedomen likevel mangel der dette følger av §§ 3-7 eller 3-8. Eigedomen har også mangel dersom han er i vesentlig ringare stand enn kjøperen hadde grunn til å rekne med ut frå kjøpesum og tilhøva ellers". Kjøper kan derfor ikke påberope seg noen andre bestemmelser etter avhl. kapittel 3, enn de regler som er ufravikelige i forbrukerforhold, jfr. avhendingslovens § 3-9, jfr. § 1-2 (2). På bakgrunn av dette oppfordres alle interessenter til å sette seg inn i eventuell egenerklæring fra selger, samt til å undersøke eiendommen nøye, gjerne sammen med fagkyndig før bud inngis.
Ta kontakt med megler for komplett informasjon
Nærområdet
Annonsene kan være mangelfulle i forhold til lovpålagt opplysningsplikt. Før bindende avtale inngås oppfordres interessenter til å innhente komplett informasjon fra meglerforetaket, selger eller utleier.







































