Bildegalleri

Fasade/hage mot vest
Nordstrand - <br/>Attraktivt beliggende enebolig med hybel og garasje. Oppussingsobjekt
Nøkkelinfo
- Boligtype
- Enebolig
- Eieform
- Eier (Selveier)
- Soverom
- 4
- Primærrom
- 207 m²
- Bruksareal
- 230 m²
- Byggeår
- 1964
- Energimerking
- F - Rød
- Tomteareal
- 1 045 m²
- Bruttoareal
- 252 m²
- Boligselgerforsikring
- Ja
Fasiliteter
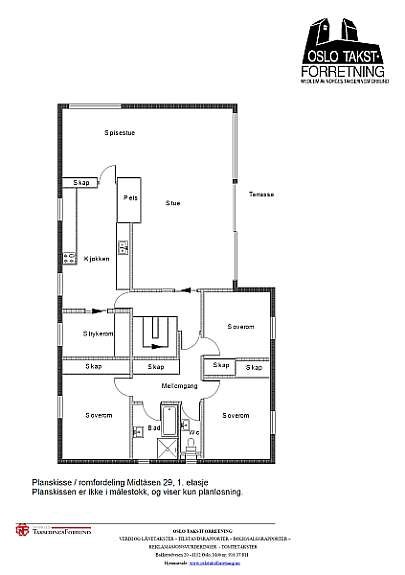
Arealer og innholdsbeskrivelse:
Totalt bruttoareal: 252 kvm.
Totalt bruksareal: 230 kvm.
Underetasje: 102 kvm.
1.etasje: 128 kvm.
Totalt primærrom: 207 kvm.
Underetasje: 79 kvm.:
Entré, hall, innredet rom, gang, vaskerom, bad, te-kjøkken, soverom.
1.etasje: 128 kvm.:
Hall, kjøkken, strykerom, spisestue, stue med peis og utgang til vestvendt terrasse og hage, mellomgang, 3 soverom, toalett, bad.
Sekundærrom:
Underetasje: 23 kvm.:
Bod, matbod, bod/råkjeller.
1.etasje: 0 kvm.
De oppgitte arealer er hentet fra vedlagte takst.
Lagringsloft.
Standard:
Innholdsrik enebolig med en god planløsning. Det ble ikke opplyst om vesentlige påkostninger utover normalt vedlikehold de senere år. Boligen har et gjennomgående moderniseringsbehov. Se takst datert 06.10.11 og selgers egenerklæring for nærmere informasjon om eiendommens standard.
Beliggenhet:
Beliggende i et meget attraktivt og veletablert villaområde på Nordstrand. Vestvendt og solrik eiendom med usjenert og trafikkskjermet hage. Barnevennlig boligområde med lite gjennomgangstrafikk og kort vei til bl.a. Nordstrand barneskole. Kort vei til offentlig kommunikasjon, servicetilbud og fritidstilbud.
Bebyggelse:
Frittliggende enebolig over 2 etasjer (underetasje og 1.etasje), oppført i 1966. Boligen er iflg. takst oppført med grunnmur i betong og yttervegger i bindingsverk kledd med trepanel. Betongsåle, støpt gulv i under etasje og støpt dekke mellom etasjer.
Garasje med støpt dekke, støpte vegger, flatt tak med papp/folietekning. Vippeport.
For ytterligere informasjon se takst datert 06.10.2011 utført av Oslo Takstforretning ved Erik Christian Windt.
Oppvarming:
Boligen er oppvarmet med el. panelovner og ildsteder for vedfyring og oljefyring. Parafin kamin i hall. Det er utvendig nedgravet oljetank. Størrelsen er ukjent.
Parkering:
Garasje med plass til en bil samt noe lagringsplass.
Tomten:
Eiet tomt på ca. 1.045 kvm. Solrik og forholdsvis usjenert tomt, opparbeidet med stor og fin hage mot vest. Aasfaltert adkomst, skiferhelle tekket gangvei mot inngangsparti samt rundt huset til terrasse, skiferhelle tekket uteplass med tørkestativ og beplantning/prydbusker.
Adkomst:
Midtåsen er en lite trafikkert vei som strekker seg fra Agnes Thorsens plass (starter som blindvei ved Nordstrand skole), langs høydedraget og ned til Åsdalsveien. Adkomst fra Nordstrandveien via Åsdalsveien og evt. Stuttvegen til Midtåsen. Mulighet også for adkomst direkte til Midtåsen ved å følge Åsdalsveien lenger syd. Alternativ adkomst fra Rosendalsveien via Nøttekneika til Midtåsen.
Reguleringsbestemmelser
Eiendommen er regulert til bolig med tilhørende anlegg.
Reguleringsbestemmelser: S-4220
Utsnitt av plan med tilhørende bestemmelser, samt grunnboksutskrift og servitutter kan fås ved henvendelse til megler.
Innhent komplett prospekt
Nettannonsen er kun et utdrag av prospektets fullstendige eiendomsopplysninger. Alle som vurderer tilbud må sette seg inn i alle prospektets opplysninger. Last ned fullstendig PDF eller kontakt megler.
Ta kontakt med megler for komplett informasjon
Nyttige lenker
Nærområdet
Krogsveen Nordstrand
Annonseinformasjon
| FINN-kode | 31135980 |
|---|---|
| Sist endret | 24. feb. 2019 01:23 |
| Referanse | KR4411199 |
Annonsene kan være mangelfulle i forhold til lovpålagt opplysningsplikt. Før bindende avtale inngås oppfordres interessenter til å innhente komplett informasjon fra meglerforetaket, selger eller utleier.




























