Bildegalleri

Hovedbilde
Gamle Stovner - Tangerudskogen - Flott enebolig i kjede med dobbelgarasje og hage. Nytt i 2001
Nøkkelinfo
- Boligtype
- Enebolig
- Eieform
- Eier (Selveier)
- Soverom
- 4
- Primærrom
- 148 m²
- Bruksareal
- 219 m²
- Byggeår
- 2001
- Energimerking
- D - Oransje
- Bruttoareal
- 239 m²
Fasiliteter
Arealer og innholdsbeskrivelse:
Totalt bruttoareal: 239 kvm
Totalt bruksareal: 219 kvm
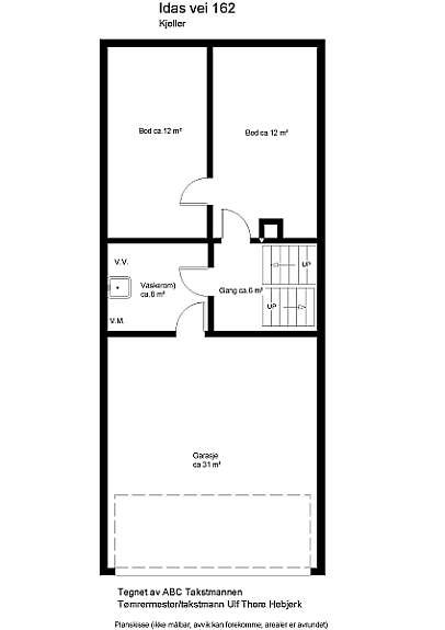
Kjeller 71 kvm.
1. etasje: 74 kvm.
2. etasje: 74 kvm.
Totalt primærrom: 148 kvm
Kjeller 13 kvm: Vaskerom, trapperom
1. etasje: 74 kvm: Entré, wc, kjøkken, stue
2. etasje: 61 kvm: Trapperom, bad/wc, 3 soverom
Sekundærrom:
Kjeller 58 kvm: Garasje, 2 boder
2. etasje: 13 kvm: Bod, bod/teknisk rom, garderobe
De oppgitte arealer er hentet fra vedlagte takst.
Standard:
Flott kjedet enebolig over 3 plan med god planløsning og gjennomgående god standard. Boligen har god planløsning og inndeling. Terrasse med gode solforhold, større hagedel og meget barnevennlig beliggenhet. Varmekabler i utvendig trapp ved inngangspartiet.
1.etg.:
Entré: Flislagt entré med varmekabler og gode lagringsmuligheter
Bad: Separat bad med dusj, toalett og servant.
Kjøkken: Romslig kjøkken med profilert innredning, fliser over benkeplate, ventilator(avtrekksvifte), integrert komfyr, kjøleskap m/liten fryseboks, opplegg til oppvaskmaskin og god spiseplass. Oppvaskmaskinen følger huset.
Stue: Stor og lys stue med utgang til terrasseplatting og hage(ca. 400 kvm.). Trapp opp til andre etasje. Peis.
2.etg.:
Gang med 2 kott - ett på hver side av trappen. Ellers gode innredningsmuligheter.
Bad: Pent flislagt bad med varmekabler i gulv med dusjhjørne og mulighet for badekar.
3 soverom. Masterbedroom med walk-in-closet (god garderobeplass) og utgang til balkong. Rom som i dag brukes som kontor kan gjøres om til soverom.
U.etg.: Gang. Stort vaskerom med utslagsvask og opplegg for vaskmaskin.
300 liters varmtvannstank i kjeller.
2 kjellerrom. Kjellerrommene er uinredet og brukes i dag som lagringsrom. Opplegg for vannuttak og sluk i gulvet i den ene boden. Inngang til den dobble garasjen.
Boligen har balansert ventilasjon og sentralstøvsuger.
Tilhørende utebod (ca 5kvm) ved inngangspartiet.
Alt i alt en meget flott bolig! Velkommen!
Beliggenhet:
Svært attraktivt og barnevennlig beliggende inntil markagrensa.
Turstier og oppmerket løypenett fra Skiforeningen i umiddelbar nærhet. Tangerudskogen boligsameie ligger innerst i Idas vei som er blindvei og med andre ord ingen gjennomgangstrafikk. Det er kort vei til skoler, barnehager, offentlig kommunikasjon og Stovner senter med alle typer forretninger og servicetilbud.
Bebyggelse:
Se vedlagte takst.
Felleskostnader inkluderer:
Felleskostnadene inkluderer: kabel-TV, felles forsikring og kommunale avgifter.
Oppvarming:
Elementpeis med innsats i stuen. Elektrisk oppvarming av boligen for
øvrig.
Parkering:
Dobbelgarasje med elektrisk port og direkte adkomst til boligens underetasje.
Tomten:
Pent opparbeidet felles tomt med bla. asfalterte internveier, plener, lekeplass m.m.
Offentlig sti til Gjelleråsmarka mellom boligen og Idas vei nr. 159.
Pent opparbeidet tomt rundt boligen med bla. belegningsstein, terrasser og trapper belagt med skifer, gressplen, beplantninger, drivhus, overbygget inngangsparti med glassvegg m/skyvedør mot terrasse/hagen m.m. Hagen grenser til Gjelleråsmarka.
Robot gressklipper følger boligen.
Adkomst:
God adkomst fra Idas vei til asfaltert gårdsplass og steinsatt parti til inngangsdør.
Buss nederst i Idas vei. Gangavstand til tog på Lørenskog stasjon og t-bane på Stovner.
God forbindelse blant annet Oslo sentrum og Gardermoen.
Reguleringsbestemmelser
Eiendommen er regulert til boliger med tilhørende anlegg.
Utsnitt av plan med tilhørende bestemmelser, eventuelt målebrevskart, tegninger samt grunnboksutskrift kan fås ved henvendelse til megler.
Innhent komplett prospekt
Nettannonsen er kun et utdrag av salgsoppgavens fullstendige eiendomsopplysninger. Alle som vurderer å inngi bud må sette seg inn i alle salgsoppgavens opplysninger. Last ned fullstendig PDF eller kontakt megler.
Ansvarlig megler
Valerie Colleou
Fagansvarlig / Eiendomsmegler
Ta kontakt med megler for komplett informasjon
Nyttige lenker
Nærområdet
Krogsveen Groruddalen
Annonseinformasjon
| FINN-kode | 30711543 |
|---|---|
| Sist endret | 24. feb. 2019 00:59 |
| Referanse | KR4311114 |
Annonsene kan være mangelfulle i forhold til lovpålagt opplysningsplikt. Før bindende avtale inngås oppfordres interessenter til å innhente komplett informasjon fra meglerforetaket, selger eller utleier.


























