Bildegalleri

LAMBERTSETER- MEGET PENT 4(5)-ROMS ENDEREKKEHUS- SOLRIK HAGE- SJELDENT OBJEKT!
Nøkkelinfo
- Boligtype
- Rekkehus
- Eieform
- Andel
- Soverom
- 4
- Primærrom
- 100 m²
- Bruksareal
- 106 m²
- Byggeår
- 1986
- Rom
- 3
- Tomteareal
- 7 752 m² (eiet)
Fasiliteter
Beliggenhet
Skjermet og god beliggenhet på Lambertseter/Munkelia, med kort vei til alt.
Skoler og barnehager i alle alderstrinn innen umiddelbar nærhet.
Offentlig kommunikasjon igjennom Munkelia t-banestasjon og bussholdeplasser i nærområdet. For utvidet rutetilbud se www.trafikanten.no.
Forretnings- og servicetilbud er det tilgang til på Lambertseter Senter, som ligger innenfor kort gange. Nye Lambertseter Senter er ferdigstillt og senteret fungere som et naturlig samlingspunkt for nærområdet.
Fritid- og rekreasjonstilbud er det tilgang til igjennom Østmarka og Østensjøvannet.
Østmarka er kjent for sine gode tur- og sykkelløyper, samt gode bade- og fiskemuligheter på Nøklevann.
Østensjøvannet er kjent for sitt yrende fugleliv og er et fuglereservat. Gode turløyper rundt vannet.
Videre er det friidrettsbane, fotballbane med treningsfelt, fotballbinge på stort friareal og svømmehall innen kort gangavstand.
Elixia treningssenter på Lambertseter
Beskrivelse
Pent rekkehus med vestvendt beliggenhet mot villaområdet inne på et avgrenset område uten biltrafikk. Rekkehuset er beliggende over to plan og har en meget arealeffektiv planløsning.
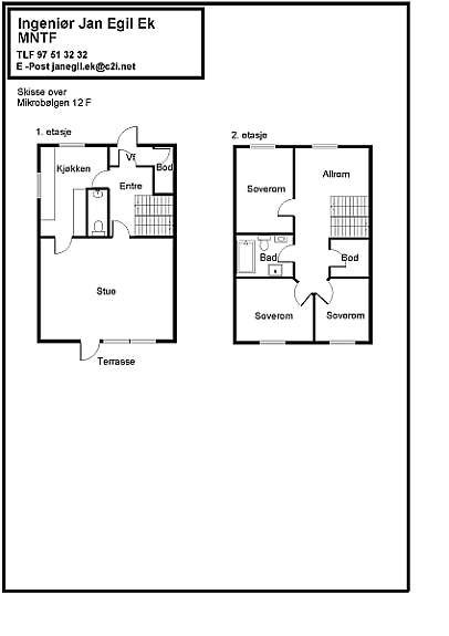
Innhold
1.etg.
Entre: Fliser på gulv, malte vegger og takess. Inngang til bod.
Stue: Stor og lys stue med spiseplass, vedovn og utgang til solrik vestvendt terrasse/hage som ligger usjenert til. Tregulv, malte vegger og takess.
Kjøkken: Nyere kjøkken med innredning i hvitstil, opplegg for oppvaskmaskin og spiseplass ved vindu. Fliser på gulv med varmekabler, malte vegger og takess.
Wc: Fliser på gulv, malt strie på vegger og takess.
Mellomgang: Tregulv, malte vegger og takess.
2.etg.
Tv-stue: Tregulv, malte vegger og takess. Inngang til romslig bod/kott.
Soverom: Parkett på gulv, malte vegger og takess. Garderobe.
Soverom ll: Parkett på gulv, malt strie på vegger og takess.
Soverom lll: Parkett på gulv, malte vegger og takess.
Bad/wc: Stort bad med badekar og opplegg for vaskemarskin/tørketrommel. Vinyl på gulv, malte/fliser på vegger og malt himling.
Diverse:
Usjenert solrik hage.
Meget barnevennlig område.
Utvendige persienner fra stuen.
Muligheter for 4 soverom!
Ute bod.
Fasaden er overflatebehandlet i 2009.
2 min gange til t-bane og buss.
Ny ytterdør kommer i 2011!
Ingen dokumentavgift!
Rask avklaring av forkjøpsrett
Parkering
Muligheter for å kjøpe garasjeplass. Selger eier 1 garasjeplass som han skal selge, denne kan kjøpes utenom boligen.
Adkomst
Kjør Lambertseterveien og inn Langbølgen mot Munkelia. Ta av til høyre inn i Mikrobølgen og du vil få borettslaget på høyre side etter ca. 30 meter.
Utfyllende informasjon om fellesgjeld og felleskostnader
Lånenummer: 12114161460, Dnb Nor Bank Asa
Annuitetslån, 4 terminer per år.
Rentesats per 17.02.2011: 3.25% pa.
Antall terminer til innfrielse: 107
Saldo per 17.02.2011: 8 142 418
Andel av saldo: 266 492
Første termin/avdrag: 30.12.2008 (siste termin 30.09.2037)
Beskaffenhet
Pent opparbeidet fellestomt med bl.a. plen, trær, busker, lekeplass og asfalterte adkomstveier m.m. Opparbeidet solrik hage som er tilknyttet rekkehuset med bl.a. terrasseplattinger, busker m.m.
Ta kontakt med megler for komplett informasjon
Nærområdet

Privatmegleren Komplett
Annonsene kan være mangelfulle i forhold til lovpålagt opplysningsplikt. Før bindende avtale inngås oppfordres interessenter til å innhente komplett informasjon fra meglerforetaket, selger eller utleier.


















