Bildegalleri

Hønefoss-Tolpinrud - VISNING 21/3! 3(4)-roms andelsleil. i barnevennlig område.
Nøkkelinfo
- Boligtype
- Leilighet
- Eieform
- Andel
- Soverom
- 2
- Primærrom
- 88 m²
- Bruksareal
- 98 m²
- Byggeår
- 1972
- Energimerking
- F - Rød
- Tomteareal
- 6 745 m² (eiet)
- Bruttoareal
- 109 m²
Fasiliteter
Innhold
Leiligheten inneholder:
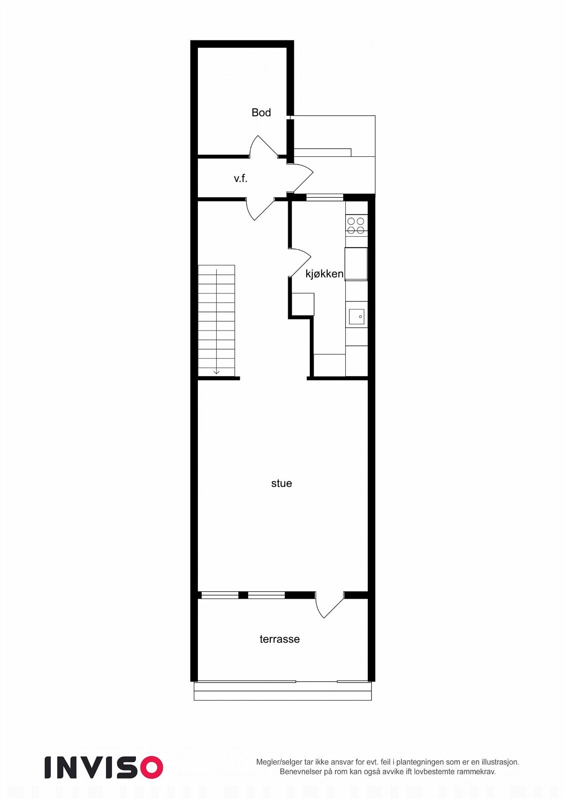
Plan 1:
Vindfang, bod, gang, trapp opp til plan 2, kjøkken og stue med utgang til terrasse.
Plan 2:
WC, bad, 2 soverom og "kontorhjørne" som kan omgjøres til soverom ved å sette opp lettvegger.
Standard
Leiligheten holder bra standard med lyse og pene overflater.
Gulv:
Laminat på kjøkken, belegg på bad og WC, parkett i øvrige rom.
Vegger:
MDF-plater på kjøkken, belegg på bad, tapet med brystningspanel på ett soverom, panel i bod, malt strie/gips i øvrige rom.
Himlinger:
Malte himlinger på bad og WC, tak-ess plater i øvrige rom.
Lyst og pent IKEA-kjøkken pusset opp i 2011/2012 med takhøye overskap og hvite slette fronter i høyglans.
Integrerte hvitevarer og stekovn med induksjonstopp.
Godt med benk- og skapplass.
Bad har badekar/dusj, enkel servant med under- og overskap.
Plass for vaskemaskin.
Ett soverom med bod som i dag benyttes som "walk-in-closet".
Oppvarming
Elektrisk oppvarming med panelovner. Stråleovn på bad.
Beliggenhet
Leiligheten ligger sentralt til på Tolpinrud med gangavstand til Hønefoss sentrum som har en rekke fasiliteter, blant annet Kuben kjøpesenter, kino, treningssenter og et bredt utvalg av kafeèr og restauranter. Gangvei fra Tolpinrud til sentrum.
I nærheten til leiligheten finner man Tolpinrud barnehage som består av fem avdelinger med plass til ca. 95 barn.
I tillegg til fotballbane er det også fine turmuligheter i nærområdet.
Avstander med bil:
Oslo, ca. 50 minutter.
Sandvika, ca. 40 minutter.
Drammen, ca. 50 minutter.
Adkomst
Fra Hønefoss sentrum følger RV 35 Askveien, til Tolpinrud.
Ta deretter inn Tungaveien som er andre avkjøring etter undergangen. Tungaveien 11C ligger innerst på venstre side.
Tomten
Tomt eiet av borettslaget som består av asfalterte internveier, felles parkeringsplass ved garasjeanlegg, grøntarealer med plen og lekeplass.
Tomten grenser mot jernbanen og noe støy må derfor påregnes.
Parkering
Til leiligheten følger det en garasjeplass.
Ellers parkering på borettslagets felles parkeringsplasser.
Diverse
Borettslaget har ikke individuell nedbetaling av fellesgjeld.
Interessenter kan få kopi av fullstendig regnskap, årsmelding 2011, revisors beretning, generalforsamlingsprotokoll og kommunale opplysninger ved henvendelse til oppdragsansvarlig.
------------------
Borettslaget orgnr. 954835324, er to-delt med to underregnskap: et regnskap pr. rekkehus og et pr. eneboligene. For ytterligere informasjon kontakt megler.
Informasjon nedenfor er basert på Tunga brl (Rekkehus):
Spesifikasjon av lån:
Lånenummer: 4, SpareBank 1 Ringerike Hadeland
Annuitetslån, 2 terminer per år.
Rentesats per 08.03.2013: 2.73% pa.
Antall terminer til innfrielse: 8
Saldo per 15.01.2013: 328 024
Andel av saldo: 27 335
Første termin/avdrag: 14.07.2005 ( siste termin 14.01.2017 )
Saldo Tunga brl. (eneboliger):
Lånenummer: 22808525821 (tidligere 22808518922), SpareBank 1 Ringerike Hadeland
Annuitetslån, 2 terminer per år.
Rentesats per 18.03.2013: 3.4% pa.
Løpetid: 30 år.
Saldo per 18.03.2013: 10 450 000,- (nylig økt med kr. ca. 3 millioner fra kr. 7 433 622,-).
Andel av saldo: kr.0,-, dette da lånet regnskapsmessig er påført eneboligene i brl.
Det gjøres oppmerksom på at med flytende rente vil felleskostandene påvirkes av renteendringer gjennom året.
Ingen mulighet for individuell nedbetaling av fellesgjeld.
Borettslagene er forsikret i Borettslagenes Sikringsfond mot andres mislighold av felleskostnader eller usolgte enheter. Dette i følge Ringbos hjemmeside: "http://www.ringbo.no/Borettslagene/tabid/673/brl/View/id/1068/Default.aspx".
Ved vesentlig mislighold kan borettslaget kreve tvangssalg av andelen.
For ytterligere informasjon, kontakt RINGBO tlf. 32113600
Taklampe over spisetue medfølger ikke salget.
Ta kontakt med megler for komplett informasjon
Nyttige lenker
Nærområdet
DNB Eiendom AS
Annonsene kan være mangelfulle i forhold til lovpålagt opplysningsplikt. Før bindende avtale inngås oppfordres interessenter til å innhente komplett informasjon fra meglerforetaket, selger eller utleier.


























