Bildegalleri

APELTUN MODERNE 3 ROMS SELVEIERLEILIGHET
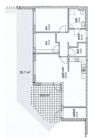
Nøkkelinfo
- Boligtype
- Leilighet
- Eieform
- Eier (Selveier)
- Soverom
- 2
- Primærrom
- 70 m²
- Bruksareal
- 77 m²
- Etasje
- 1
- Byggeår
- 2006
- Energimerking
- D - Rød
- Rom
- 3
- Tomteareal
- 5 617 m² (eiet)
- Grunnflate
- 85 m²
Fasiliteter
Beliggenhet
Eiendommen har en sentral og god beliggenhet i nyere boligområde i Apeltunlien. Kort vei til skole, barnehage, Lagunen Storsenter, Nesttun senter, Smøråsfjellet, Stendafjellet og kort vei til god Bussforbindelse. Leiligheten ligger i et område med tilsvarende bebyggelse.
Beskrivelse
Leiligheten har en praktisk planløsning, holder gjennomgående god standard med moderne og tidsriktige overflater og innredninger med lite bruksslitasje.
Adkomst
Fra Nesttun, tas Apeltunveien til kryss mrk. Smørås. Kjør opp mot smørås. Kjør forbi Apeltun Skole på høyre side, og deretter andre vei til høyre inn i Apeltunlien. Lavblokker ligger rett etter avkjørsel på venstre side.
Eier(e): Hege De Haan. Kontaktperson Øyvind Eliassen, tlf: 97 97 77 00
Utfyllende informasjon om fellesgjeld og felleskostnader
Utfyllende informasjon om fellesgjeld og felleskostnader:
Kr 1 337 Fellesutgifter dekker: felles byggforsikring, kabelt-tv,
internett, strøm i fellesarealer, drift av sameiet, plenklipping,
snømåking, gangvask etc.
Offentl. avg. pr. år: Kr 7 152
Andel felleskostnader: 16 044
Sum kostnader Kr: 23 196
Beskaffenhet
Felleseiende tomt som er pent opparbeidet. Fellesarealer er trappegang, garasjeanlegg og utearealer.
Utstyr:
Kjøkkeninnredning fra Norema med laminert benkeplate. Glatte fronter i bjørk. Skiferfliser mellom benkeplate og overskap. Ventilator i stål med mekanisk avtrekk. Integrert mikrobølgeovn, keramikktopp, stekeovn, oppvaskmaskin, BOSCH KAN58A70 side by side kombiskap. Garderobeskap på ett soverom og i gang.
Bad med fliser på gulv og vegger. Varmekabler i gulv. Mekanisk avtrekk.Sanitærutstyr på bad er: toalett, dusj, hjørneboblekar, opplegg for vaskemaskin og servant med innredning. Varmtvannsbereder på 200 liter fra 2006 er plassert i innvendig bod.
Boligen har sikringsskap med automatsikringer.
Porttelefon med døråpner.
Oppvarming:
Elektrisk oppvarming. Varmekabler på bad.
Ledig:
Etter avtale
Visning:
Etter avtale
Andre opplysninger:
Off. vei, vann, kloakk.
Solgt "som den er"
Eiendommen selges i den forfatning den er under visning, salget følger avhendingslovens § 3-9: "Enda eigedomen er "selt som han er", eller med liknande atterhald, har eigedomen likevel mangel der dette følger av §3-7 eller 3-8. Eigedomen har også mangel dersom han er i vesentlig ringare stand enn kjøperen hadde grunn til å rekne med ut frå kjøpesum og tilhøva ellers". Kjøper kan derfor ikke påberope seg noen andre bestemmelser etter avhl. kapittel 3, enn de regler som er ufravikelige i forbrukerforhold, jfr. avhendingslovens § 3-9, jfr. § 1-2 (2). På bakgrunn av dette oppfordres alle interessenter til å sette seg inn i eventuell egenerklæring fra selger, samt til å undersøke eiendommen nøye, gjerne sammen med fagkyndig før bud inngis.
Ta kontakt med megler for komplett informasjon
Nyttige lenker
Nærområdet
Annonseinformasjon
| FINN-kode | 30807918 |
|---|---|
| Sist endret | 28. okt. 2011 13:08 |
| Referanse | Eliassen, Øyvind |
Annonsene kan være mangelfulle i forhold til lovpålagt opplysningsplikt. Før bindende avtale inngås oppfordres interessenter til å innhente komplett informasjon fra meglerforetaket, selger eller utleier.















