Bildegalleri

Illustrasjon fra gårdsrommet. Kontoretasjene vil ha en egen inngang som er adskilt fra parkeringsetasjene.
Kronstadparken -Topp moderne " Penthouse" lokaler. Ferdig 4 kvartal 2015
Nøkkelinfo
- Areal
- 532 - 3 326 m²
- Etasje
- 78.
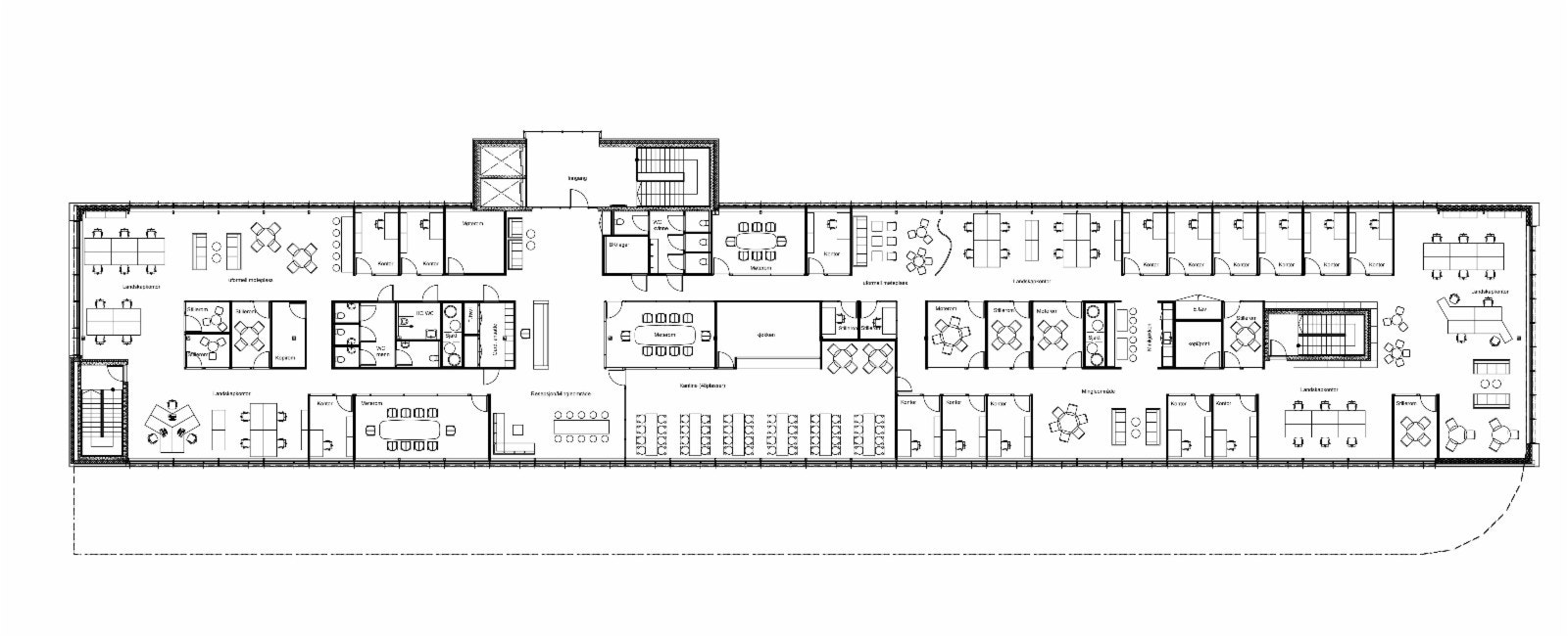
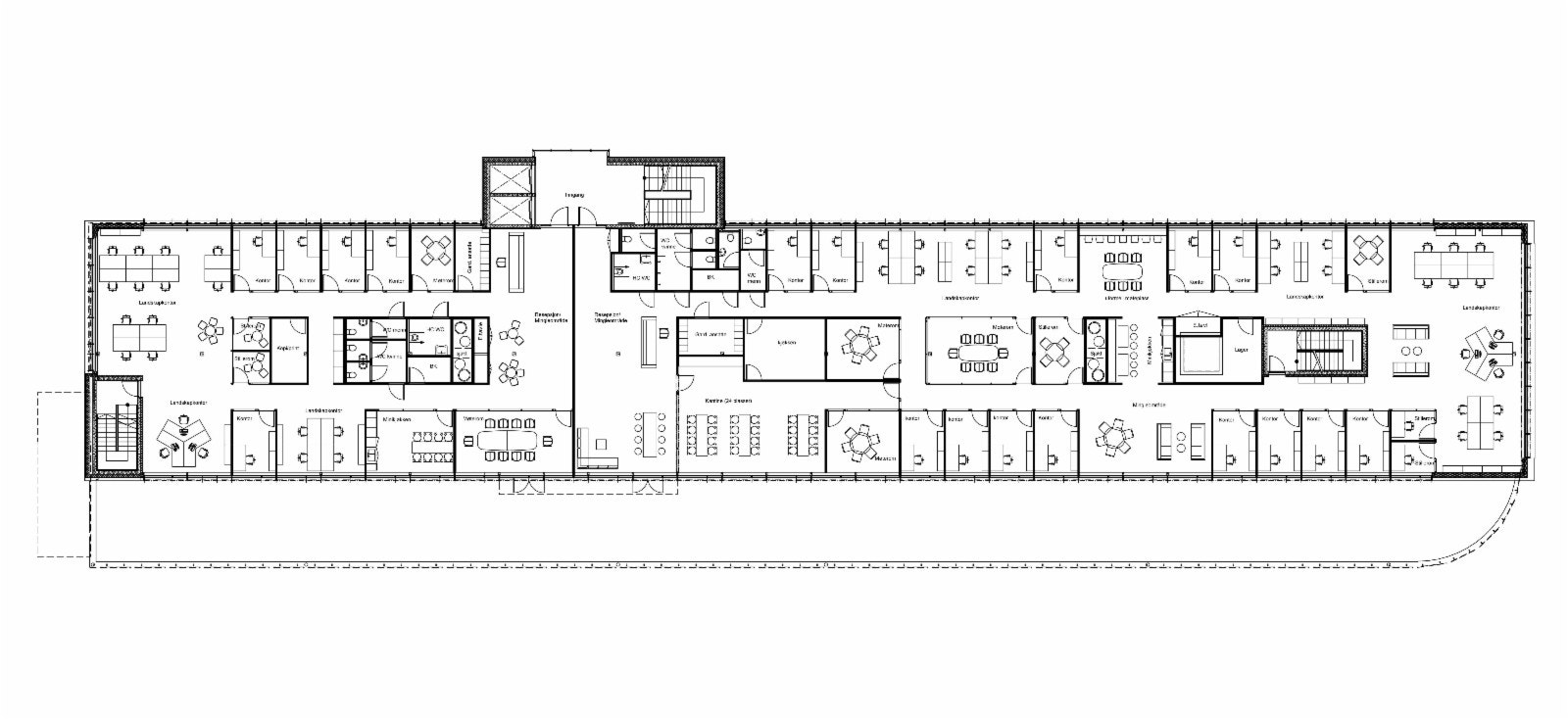
Type lokale
Fasiliteter
Om eiendommen
Kronstadparken
Kronstadparken er et stort og spennende byfornyingsprosjekt lokalisert i den såkalte næringskorridoren rett sør for Danmarksplass. Bara Eiendom er i full gang med utviklingen av en ny og attraktiv næringspark med rundt 70.000 kvm kontor og næringslokaler. Ferdig utbygget vil området bestå av rundt 4000 arbeidsplasser i tillegg til rundt 600 boliger. Kronstadparken vil være realisering av en moderne, urban og levende bydel med et variert og attraktivt service tilbud.
Beliggenhet
Plasseringen av bygget ut mot Fjøsangerveien og Fabrikkgaten sikrer leietaker en svært god eksponering og profileringsmuligheter.
Adkomst
Standard
Lokalene vil bli skreddersydd etter leietakers behov og ønsker, i tillegg til at leietaker vil få anledning til å påvirke både utforming og materialvalg. Dette gjør det mulig for leietaker å skape kreative, gode og fleksible kontorløsninger som tar høyde for fremtidige behovsendringer. I tillegg vil også bli bygget en flott terrasse i 7. etasje som gir rom for hyggelig sosialisering og en solgløtt i ny og ne.
På byggets fasade er det lagt tilrette for led-belyst fasadeskilt som vil gi en unik profileringsmulighet ut mot Fjøsangerveien.
Bygget ferdigstilles i 4. kvartal 2015 og vil være sertifisert under energiklasse B.
Ta kontakt med oss for ytterligere informasjon om prosjektet!
BARA EIENDOM AS
Nærområdet
Annonsene kan være mangelfulle i forhold til lovpålagt opplysningsplikt. Før bindende avtale inngås oppfordres interessenter til å innhente komplett informasjon fra meglerforetaket, selger eller utleier.














