Bildegalleri

Professor Birkelandsvei 27B Fasade
Kontor/lager/forretning sentralt ved IKEA og "Kjøttbyen" på Furuset - til leie
Nøkkelinfo
- Areal
- 28 - 1 245 m²
Type lokale
Fasiliteter
Arealspesifikasjon
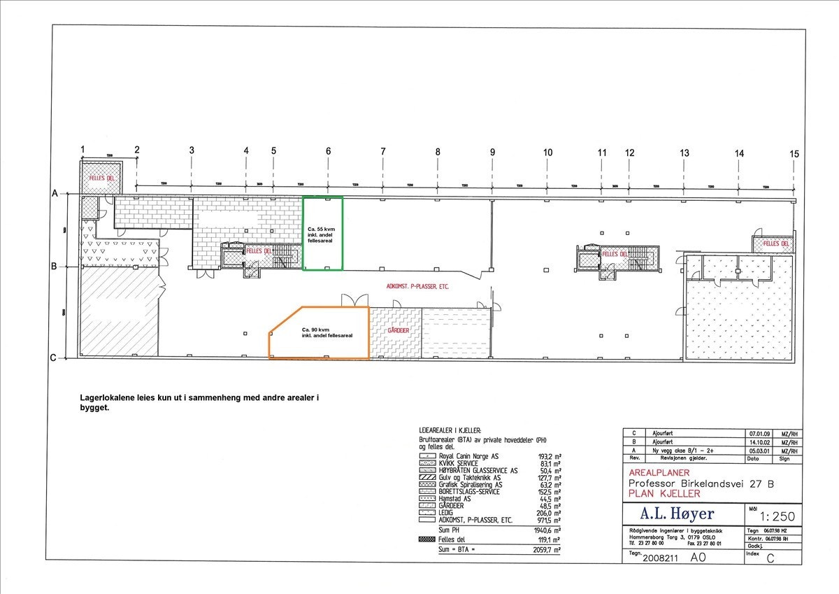
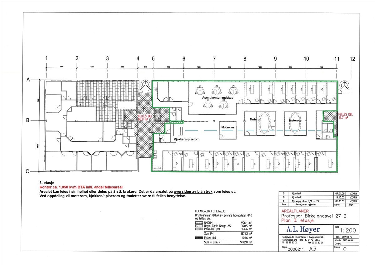
m²/antEtgBeskrivelse55m² Lager/verksted, Grønt areal90m² Lager/verksted, Oransje areal166m²1Lager/verksted, Rødt areal28m²2Kontor, Rødt areal906m²3Kontor, Grønt areal
Inneholder
Sentralt beliggende i "Kjøttbyen" på Furuset har vi for utleie til sammen ca. 1.415 kvm lager-/verksted-/produksjonslokaler og kontor.
Eiendommen ligger i etablert næringsområde med flere kombinasjons- og lagerbygg.
Arealene fremkommer som følger:
Professor Birkelandsvei 27 B (oppført i 1988-89)
Areal 1 (blått areal i planskisse, eget prospekt. Ta kontakt med megler dersom dette er interessant)
Areal 2
1. etg lager/verksted m/oljeutskiller: ca. 166 kvm
Takhøyde 5,55 meter, 2 stk kjøreporter: 5,0 x 4,94 meter.
Kontormessanin: ca. 28 kvm, mulighet for minikjøkken. Totalt ca. 220 kvm BTA inkl. andel fellesareal - Må leies samlet.
Utleier ønsker fortrinnsvis at areal 2 skal leies som lager i sammenheng med kontorene i 3. etasje (areal 3). Kommer det en leietaker på banen som ikke ønsker lager, vil arealet kunne leies ut alene.
Areal 3
3. etg kontor: ca. 906 kvm.
Totalt 1.050 kvm BTA inkl. fellesareal.
Arealet kan leies i sin helhet eller deles på 2 stk brukere. Ved oppdeling vil møterom, kjøkken/spiserom og toaletter være til felles benyttelse.
Bebyggelsen
Eiendommen ligger sentralt i etablert næringsområde like ved IKEA og "Kjøttbyen" på Furuset.
Ca. 600 m nord for IKEA, samt kort vei til Furuset eller Stovner Storsenter med det meste av fasiliteter.
Standard
Prof. Birkelandsvei 27 B: God og moderne standard.
Oppvarming
Prof. Birkelandsvei 27 B: Elektrisk, samt ventilasjonsanlegg med kjøling.
Tomten
Flat tomt opparbeidet med asfaltere kjøre- og parkeringsarealer.
Godt med parkering. Leie av p-plasser etter avtale. Ca. 60 plasser totalt tilgjengelig.
Generell info
Lokalene kan overtas etter nærmere avtale.
Off. kommunikasjon
Bussforbindelse i Professor Birkelandsvei, med overgangsmulighet til tog og T-bane.
Adkomst
Eiendommen har nær beliggenhet til E-6 som gir rask adkomst til Oslo Sentrum og Gardermoen.
Det er ca. 10 minutter kjøring til Oslo sentrum og 25 minutter kjøring til Gardermoen.
Visning
Etter avtale med megler.
REF: 13013
Matrikkelinformasjon

Real Næringsmegling AS
Nærområdet
Annonsene kan være mangelfulle i forhold til lovpålagt opplysningsplikt. Før bindende avtale inngås oppfordres interessenter til å innhente komplett informasjon fra meglerforetaket, selger eller utleier.

















