Bildegalleri

Fasade
Bekkelaget - Liten enebolig med romslig og solrik tomt. Totalt oppussingsobjekt
Nøkkelinfo
- Boligtype
- Enebolig
- Eieform
- Eier (Selveier)
- Soverom
- 3
- Primærrom
- 80 m²
- Bruksareal
- 85 m²
- Byggeår
- 1933
- Energimerking
- G - Rød
- Tomteareal
- 845 m²
- Bruttoareal
- 94 m²
Fasiliteter
Beliggenhet
Beliggende i et attraktivt og populært villaområde på Bekkelagshøgda, i bydel Nordstrand. Gode solforhold på eiendommen og nærhet til bl.a. store friområder på Ekebergsletta. Kort vei til barnehager, skoler, offentlig kommunikasjon og et rikt servicetilbud på Lambertseter Senter og Holtet, hvor du bl.a. finner populære Jacobs.
Umiddelbar nærhet til buss i Raschs vei og kort vei til Karlsrud t-bane stasjon og trikk fra Holtet.
(Vennligst se www.ruter.no for rutetider)
Et rikt fritidstilbud i nærmiljøet, med bl.a. få minutters gange til flotte turområder i Byskogen, Brannfjellskogen og Ekebergsletta. Området rundt Ekebergsletta kan bl.a. by på fasiliteter som lysløype, idrettsanlegg, minigolfbane, husdyrpark og ridesenter, store friområder, Ekebergrestauranten m.m. Eiendommen ligger også i nærheten av fjorden, med flere hyggelige badestrender, som bla. Ulvøya, Nordstrand bad og Katten.
Et mangfold av tilbud i lokale idrettslag og foreninger, som f.eks.:
Bekkelaget sportsklubb(BSK) - håndball, fotball m.m. Anlegg på sportsplassen med bl.a. kunstgressbane, samt Ekeberghallen.
Bekkelaget Tennnisklubb (BTK) med anlegg innerst i Jomfrubråtveien.
Nordstrand tennisklubb (NTK) med uteanlegg i Seterveien og tennishall ved Nordseter skole i Ekebergveien.
Nordstrand IF på 'Niffen' med håndballhall og fotballbane.
Lambertseter idrettsforening med friidrettsanlegg og fotballbaner på Lambertseter - svømmehall i tilknytning til Lambertseter skole samt lokal lysløype på Bergkrystallen.
Områdets lokale alpinbakke - Sloreåsen.
Treningsstudio: Elixia på Lambertseter, BestHelse på Holtet og Evo på Sæter.
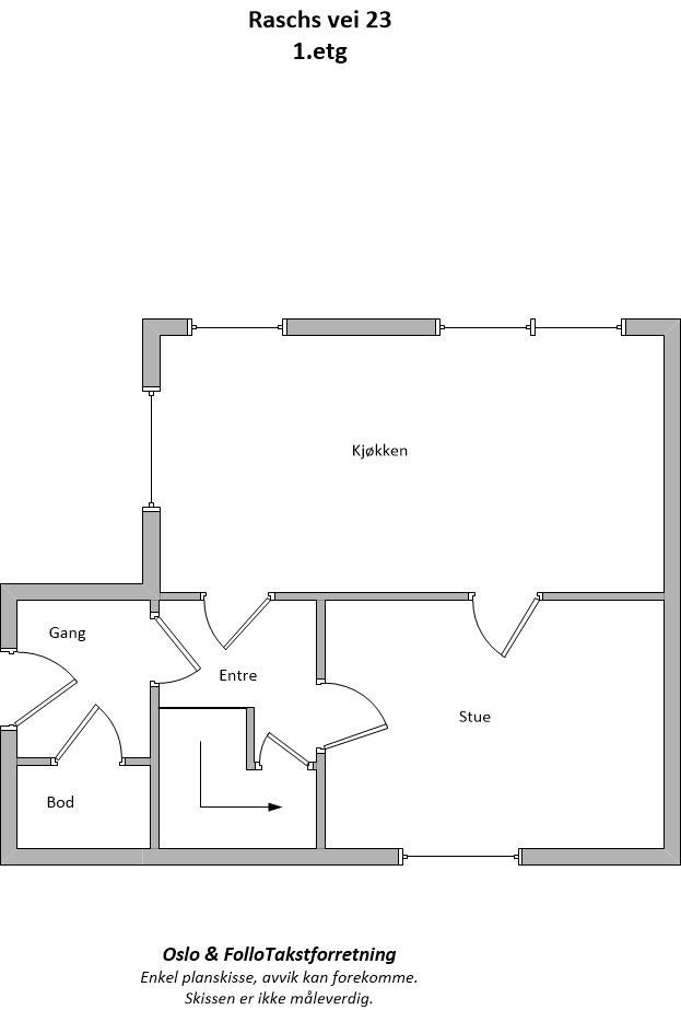
Arealer og innholdsbeskrivelse:
Totalt bruttoareal: 94 kvm
Totalt bruksareal: 85 kvm
Totalt primærrom: 80 kvm
Primærrom 1. etasje:
Entré, kjøkken, stue, vindfang: 41 kvm
Primærrom 2 etasje:
Gang og 3 soverom: 39 kvm
Sekundærrom 1 etasje:
2 Kott: 4 kvm
Sekundærrom 2 etasje:
Kott: 1 kvm
Utebod på 10 kvm.
Vedlagte plantegninger er ikke målbare. De oppgitte arealer er hentet fra takst datert 10.03.2016 utført av Oslo og Follo Takstforretning AS. Arealene er beregnet og rom er definert etter dagens faktiske bruk, uavhengig av hva som er godkjent av bygningsmyndighetene.
Standard:
Raschs vei 23 er tegnet av Arkitekt Mads Wiel Gedde og eiendommen tilhører den første fasen av en større utparsellering til boligtomter i området. Huset fremstår som svært autentisk fra denne tiden og trenger derfor en ny eier som kan renovere huset til å bli flott igjen.
Sjarmerende lite hus med romslig, solrik hage og meget attraktiv beliggenhet. Huset fremstår som et totalt oppussingsobjekt både utvendig og innvendig. Om man ikke ønsker å bruke wc på kjøkkenet bør det påregnes etablering av nytt bad i boligen ved å dele av kjøkkenet. Eldre kjøkkeninnredning med eikefinerte fronter, laminat benkeplate med nedfelt oppvaskkum, opplegg for oppvaskmaskin, kullfilterventilator (virker ikke) og flisfelt på vegg over benk.
Materialvalg:
- Overflater på innvendige gulv, vinylbelegg og malte gulvbord.
- Overflater på innvendige vegger, tapet, panel, malt panel og malte flater.
- Overflater på innvendig himling, malt panel og malte flater.
- Fordelingskurser med skrusikringer, to målere.
- Plassbygde garderobeskap i soverommene.
- 300 liters bereder fra 2005.
For ytterligere standard se vedlagt takst i salgsoppgaven.
Oppvarming:
Oppvarming med panelovner og rundovn i stuen. Dersom beboelsesrom ikke har vegg- eller fastmonterte varmekilder ved visning følger dette heller ikke med.
Bebyggelse:
Bygningen er iht. takst oppført med betongsåle til antatt fast grunn og grunnmur i støpt betong.
Kjeller uten adkomst da adkomst fra 1.etg er kledd igjen. Yttervegger med panelt reisverk, isolert med to lag papp og to lag panel. Værslitt fasdade, det er behov for ytre vedlikehold i form av maling og lokale utbedringer på panel/vannbrett. Valmet takkonstruksjon er utført som sperrekonstruksjon med bordtak, sløyfer og lekter.
Registrert råteskader på gesims mot øst og lekkasje i renne bak vindskie mot vest. Taket er tekket med betongtakstein. Renner og nedløp i stål. Vinduer med doble glass.
Det gjøres oppmerksom på at endring av fasade, utskiftning av vinduer m.m må søkes byantikvaren for godkjennelse.
Takst følger vedlagt i salgsoppgaven. Interessenter må sette seg inn i denne før bud inngis.
Parkering:
Mulighet for parkering på egen grunn.
Tomten:
Eiet tomt på 844,8 kvm opparbeidet med plen og beplantninger. Eiendommen er oppført på Byantikvarens Gule liste. Det betyr at den er verneverdig. Listeføring av en bygning er et resultat av Byantikvarens vernevurdering. Listeføring betyr at Byantikvaren normalt vil be om forbud mot tiltak dersom det søkes om riving eller tiltak som vil ødelegge husets kulturminneverdi. Kommunalt listeførte bygninger er markert med gult i kartet for Gul liste.
Regulering
Eiendommen er regulert til boligformål i henhold til reguleringsplan S-4220 datert 15.03.2006 med tilhørende reguleringsbestemmelser. Det foreligger midlertidig forbud mot tiltak på eiendommen til pågående reguleringsak er ferdig. Omreguleringen går ut på om hele tomten skal reguleres til bevaring/fredning eller ikke. Se vedlegg til salgsoppgaven Byrådssak 186/15.
Utsnitt av plan med tilhørende bestemmelser kan fås ved henvendelse til megler.
Eiendommens utgifter:
Kommunale avgifter er kr 10.475,- for inneværende år. I dette inngår gebyr for vann, avløp, renovasjon og feiing/tilsyn.
Selger har ikke bebodd eiendommen og har således ikke kjennskap til øvrige løpende utgifter for eiendommen.
Oslo kommune har innført eiendomsskatt fra og med 2016. Skattesatsen for 2016 er fastsatt til 2 ? og det er vedtatt et bunnfradrag på 4 millioner kroner. Megler har ikke fått opplyst hva eiendomsskatten utgjør, men basert på eiendommens ligningsverdi antas det at denne eiendommen ikke vil få eiendomsskatt. Ta kontakt med Eiendomsskattekontoret for nærmere informasjon.
Adkomst
Adkomst til eiendommen fra krysset mellom Raschs vei og Ringshusveien. Det vil bli skiltet med Krogsveen visningsskilt ved fellesvisninger.
Innhent komplett prospekt
Nettannonsen er kun et utdrag av prospektets fullstendige eiendomsopplysninger. Alle som vurderer tilbud må sette seg inn i alle prospektets opplysninger. Last ned fullstendig PDF eller kontakt megler.
Ta kontakt med megler for komplett informasjon
Nyttige lenker
Nærområdet
Krogsveen Nordstrand
Annonsene kan være mangelfulle i forhold til lovpålagt opplysningsplikt. Før bindende avtale inngås oppfordres interessenter til å innhente komplett informasjon fra meglerforetaket, selger eller utleier.



















